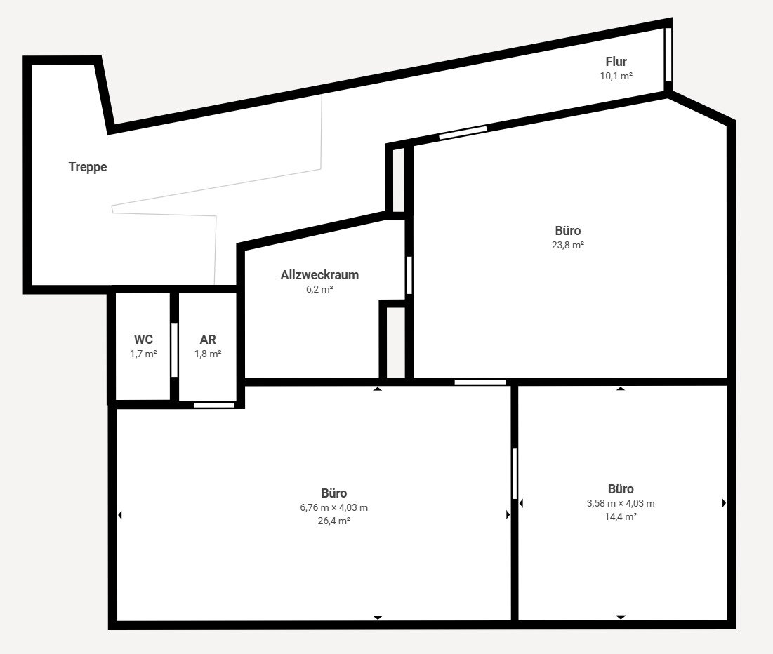
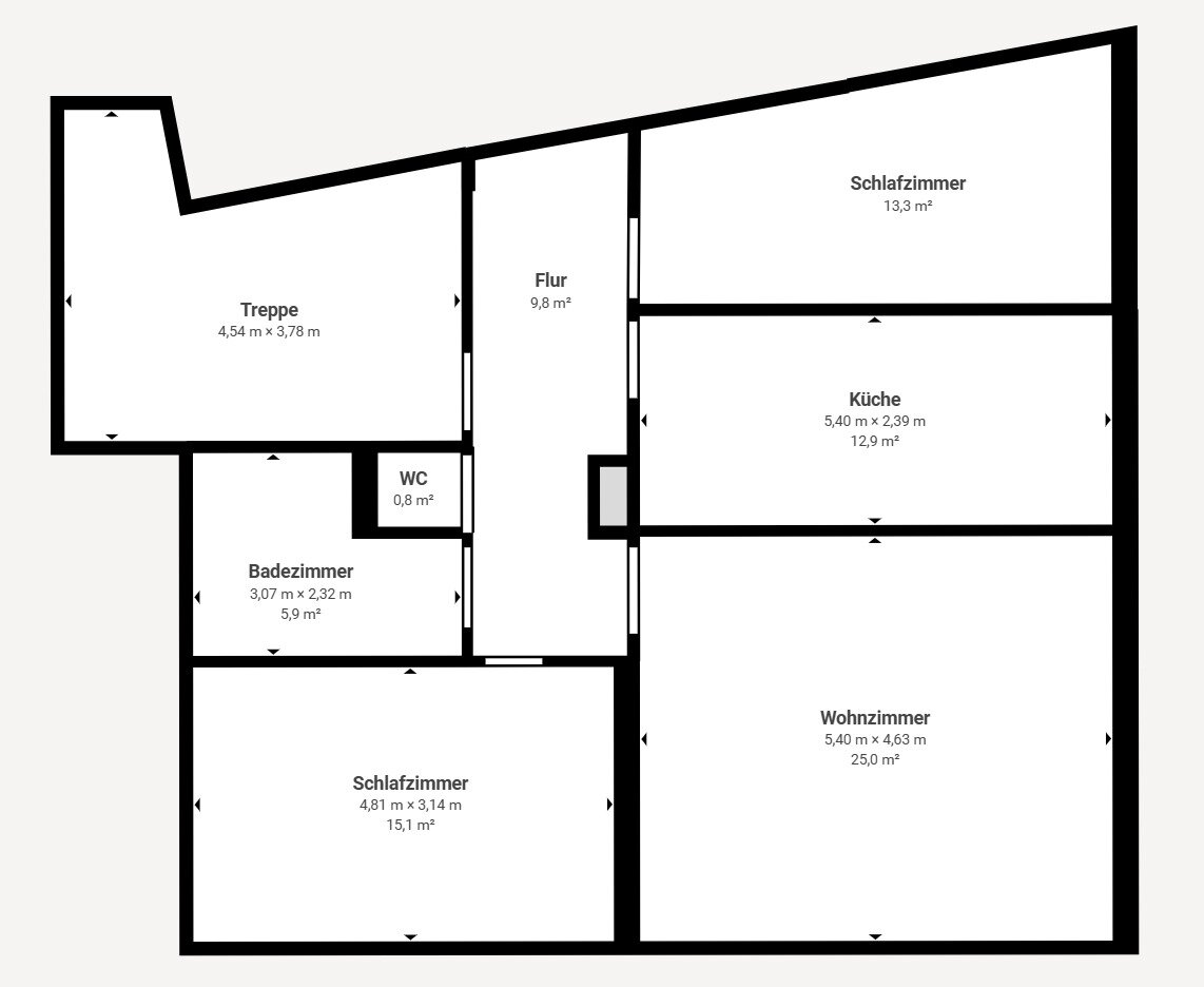
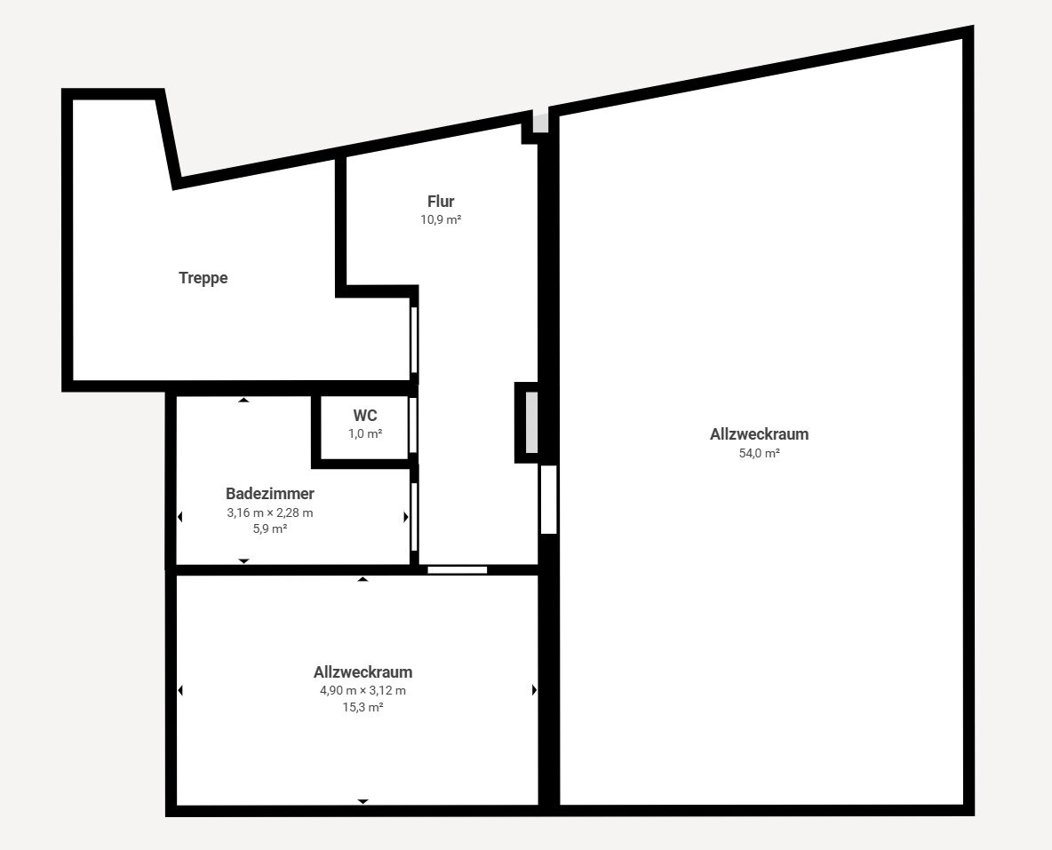
Flexibel nutzbares Geschäftshaus / Mehrgenerationenhaus mit ca. 245 m² Wohnfläche und ca. 330 m² Nutzfläche auf einem 279 m² großen Grundstück mit ca. 150 m² privatem Garten. Das Haus erstreckt sich über 3 Obergeschosse plus Keller und Garage. Jede Etage kann semi-autonom genutzt werden – ideal als Mehrgenerationenhaus, Bürogebäude oder für gemischte Nutzung (Wohnen & Arbeiten). Erdgeschoss: Geschäfts-/Büro-/Wohnfläche. 1. Obergeschoss: Separate Wohn-/Büroeinheit. 2. Obergeschoss: Weitere eigenständige Einheit. 8 Zimmer, 2 Bäder, 3 WCs. Baujahr 1967, Ölheizung, Einbauküche, Klimaanlage, Vollkeller, Garage und Privatgarten. Sofort beziehbar.
Infrastruktur / Entfernungen
Gesundheit
Arzt <500m
Apotheke <500m
Klinik <4.500m
Krankenhaus <7.000m
Kinder & Schulen
Schule <500m
Kindergarten <500m
Universität <1.000m
Höhere Schule <4.000m
Nahversorgung
Supermarkt <500m
Bäckerei <500m
Einkaufszentrum <1.000m
Sonstige
Bank <500m
Geldautomat <500m
Post <500m
Polizei <500m
Verkehr
Bus <500m
U-Bahn <4.500m
Straßenbahn <5.000m
Bahnhof <4.500m
Autobahnanschluss <7.500m
Angaben Entfernung Luftlinie / Quelle: OpenStreetMap
- Kaufpreis:€ 749.000,00
- Provision:3% des Kaufpreises zzgl. 20% USt.



















