preiswerte Mietwohnung I 3 Zimmer I Judenburg West
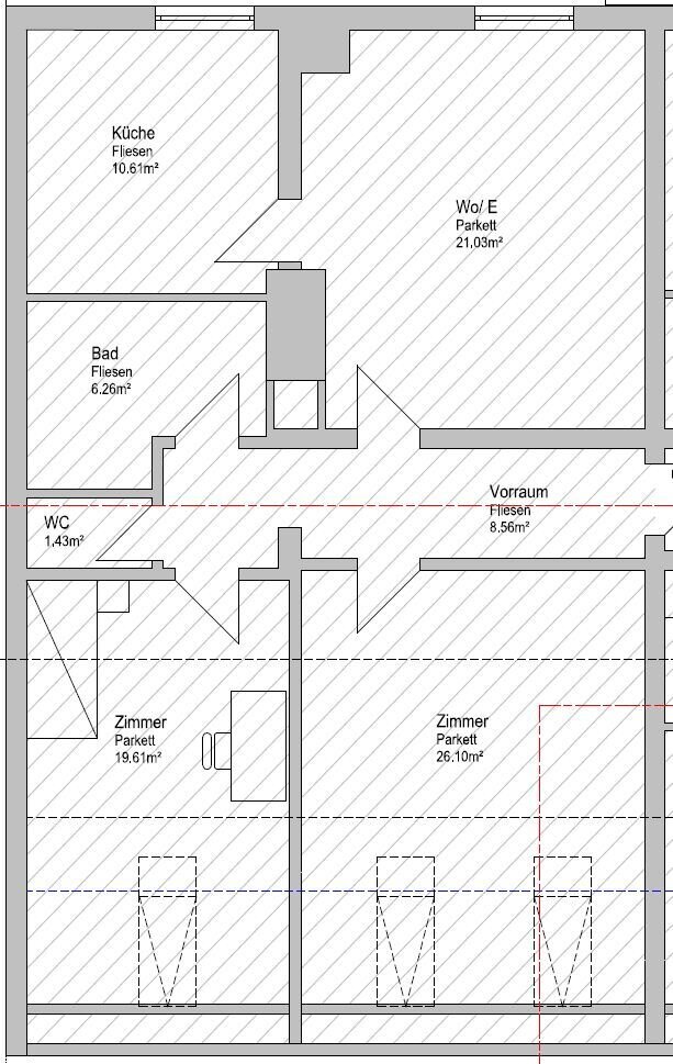
93 m² Wohnfläche4, große Räume sowie eine voll ausgestattete Küche stehen Ihnen ohne Zusatzkosten zur Verfügung. Das Badezimmer ist mit einer Badewanne ausgestattet.
Ein Lift sorgt für einen bequemen Zugang in den zweiten Stock.
Die Lage bietet eine sehr gute Verkehrsanbindung: Autobahnanschluss in wenigen Minuten sowie eine Bushaltestelle direkt vor dem Haus – ideal für Pendler und Familien.
PKW-Stellplätze sind direkt vor dem Wohnhaus.
Vereinbaren Sie noch heute einen Besichtigungstermin und lassen Sie sich begeistern!
Gemäß § 6 Abs. 4 Maklergesetz wird auf das wirtschaftliche Naheverhältnis zum Verkäufer betreffend des angebotenen Objektes hingewiesen und es sind die Immobilienmakler der Bischof Immobilien GesmbH kraft bestehenden Geschäftsgebrauchs nicht als Doppelmakler tätig.
BITTE BEACHTEN SIE, DASS WIR AUFGRUND DER NACHWEISPFLICHT GEGENÜBER DEM EIGENTÜMER NUR ANFRAGEN MIT VOLLSTÄNDIGER ANGABE DER ANSCHRIFT BEARBEITEN KÖNNEN.
Wir weisen darauf hin, dass zwischen dem Vermittler und dem zu vermittelnden Dritten ein familiäres oder wirtschaftliches Naheverhältnis besteht.
Der Immobilienmakler erklärt, dass er – entgegen dem in der Immobilienwirtschaft üblichen Geschäftsgebrauch des Doppelmaklers – einseitig nur für den Vermieter tätig ist.
Infrastruktur / Entfernungen
Gesundheit
Arzt <500m
Apotheke <2.000m
Krankenhaus <2.000m
Kinder & Schulen
Schule <2.000m
Kindergarten <1.000m
Nahversorgung
Supermarkt <500m
Bäckerei <2.500m
Einkaufszentrum <9.500m
Sonstige
Bank <2.000m
Geldautomat <2.000m
Post <2.000m
Polizei <2.000m
Verkehr
Bus <500m
Autobahnanschluss <500m
Bahnhof <2.500m
Flughafen <9.000m
Angaben Entfernung Luftlinie / Quelle: OpenStreetMap
- Mietpreisauf Anfrage
- Betriebskosten Netto:€ 0,00













