Diese sehr helle, etwas modernisierungsbedürftige Wohnung liegt im 1. Stock eines äußerst gepflegten Altbaus in der Leyerstraße im 14. Bezirk und bietet auf rund 83 m² Wohnfläche ein außergewöhnliches Raumgefühl sowie viel Potenzial für eine stilvolle Weiterentwicklung. Dank der großzügigen Grundrissgestaltung, der hohen Räume und der klassischen Altbaudetails kann mit gezielten Adaptierungen ein echtes Schmuckstück entstehen.
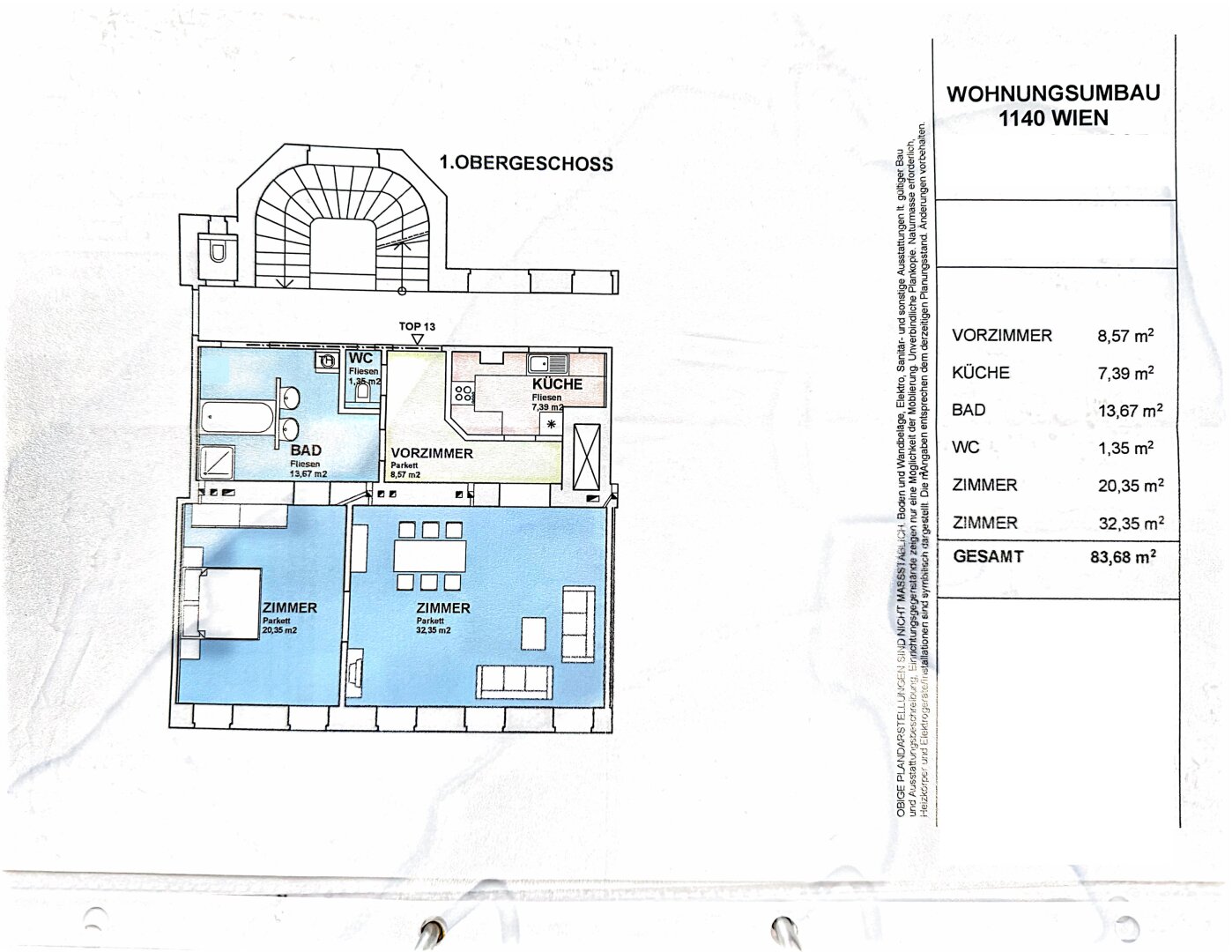
Die Wohnung liegt im 1. Stock, den Sie entweder über das elegante Stiegenhaus oder bequem über einen Schlüssellift erreichbar. Beim Betreten gelangt man in ein verfliestes Vorzimmer, das ausreichend Platz für Garderobe und Stauraum bietet. Gleich rechter Hand befindet sich ein separates WC mit Handwaschbecken.
Eine weitere Tür führt in das außergewöhnlich großzügige Badezimmer, das mit Badewanne, Dusche, zwei Handwaschbecken, Waschmaschinenanschluss und Fenster ausgestattet ist – ein Raum, der sowohl funktional als auch komfortabel gestaltet werden kann.
Das rund 20 m² große Schlafzimmer ist sowohl über das Badezimmer als auch über das Wohnzimmer zugänglich und überzeugt mit klassischem Wiener Fischgrätparkett, einer Raumhöhe von etwa 3,30 Metern und angenehmer Proportion. Die hohen Decken und großen Fenster unterstreichen den typischen Altbaucharakter.
Herzstück der Wohnung ist das etwa 32 m² große Wohnzimmer, das durch seine Großzügigkeit vielfältige Nutzungsmöglichkeiten bietet – von einem repräsentativen Wohnbereich über einen großzügigen Essplatz bis hin zu einer integrierten Arbeits- oder Leseecke. Hier lässt sich Wohnen mit Charakter und Individualität gestalten.
Die Küche verfügt über ein Fenster und Tageslicht und bietet eine solide Basis für eine zeitgemäße Neugestaltung. Mit einer Modernisierung kann hier ein funktionaler und ansprechender Küchenraum entstehen, der sich harmonisch in das Gesamtbild der Wohnung einfügt.
Die Lage überzeugt durch ihre sehr gute Verkehrsanbindung. Die Straßenbahnlinien 49, die Buslinie 51A sowie die Nachtlinie N49 befinden sich direkt in der Nähe. Die U3-Station Hütteldorfer Straße ist in etwa zehn Minuten fußläufig erreichbar. Nahversorgung, Bäckereien, Supermärkte sowie die Volksschule Märzstraße befinden sich ebenfalls in unmittelbarer Umgebung.
Die Wohnung ist aktuell noch bewohnt und voraussichtlich ab Anfang April 2026 beziehbar. Sie richtet sich an Käuferinnen und Käufer, die den Charme eines klassischen Wiener Altbaus schätzen und das Potenzial erkennen, mit gezielten Maßnahmen eine außergewöhnlich attraktive Wohnung zu schaffen.
DIGITALE BESICHTIGUNG
Unter folgenden Link können Sie eine digitale Besichtigung durchführen und sich Schritt für Schritt durch die Wohnung bewegen: https://my.matterport.com/show/?m=afkdKPcSfiX
Nähere Details, mehr Bilder sowie einen persönlichen Besichtigungstermin erhalten Sie gerne auf Anfrage.
- Kaufpreis:€ 325.000,00
- Provision:3% des Kaufpreises zzgl. 20% USt.















